Если цена в объявлении изменится, мы сразу сообщим вам об этом на электронную почту.
Нажимая «Подписаться», вы соглашаетесь с правилами.
продам дом, Городянская, 2612 500 000 ₽
14 окт
Дата публикации объявления
Обн. 22 апр
Дата обновления объявления
6
Количество просмотров (+ просмотры за сегодня)
50 607 ₽/м²
Чистая продажа
Термин "Чистая продажа" означает, что в квартире никто не прописан или
есть куда выписаться и вывезти вещи. Это лучший вариант для покупателя.
Вероятность срыва сделки минимальна.
Этажей2
Площадь участка9,08 соток
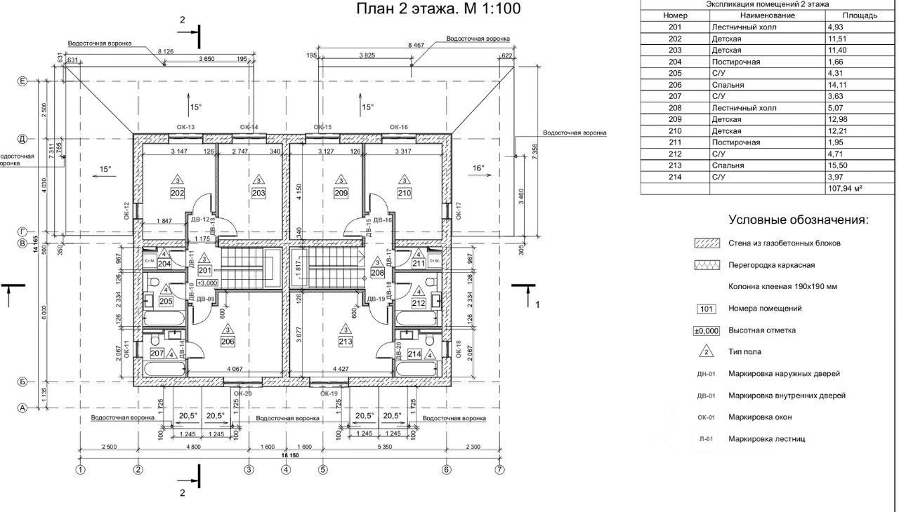
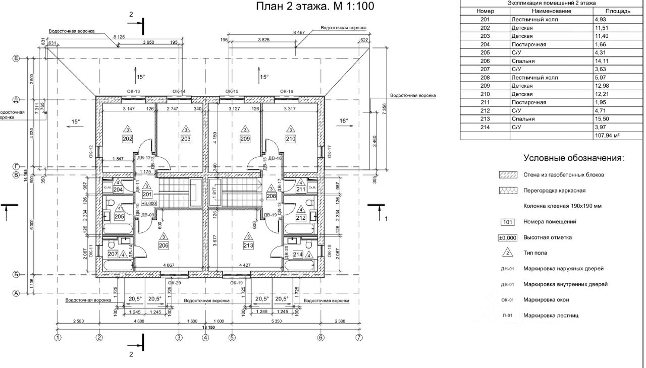
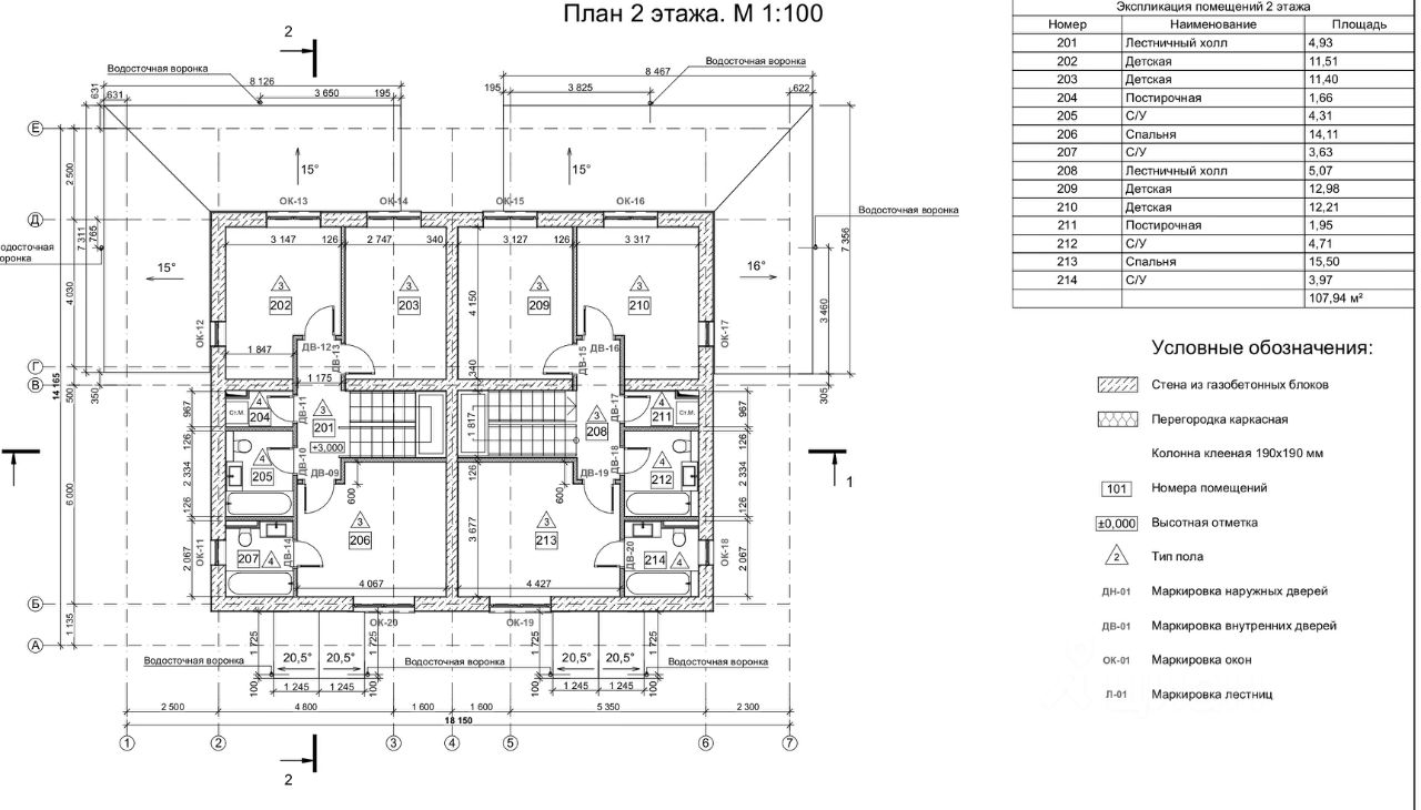
Общая площадь247 м2
ЭлектричествоЕсть
Газоснабжениецентральное
Продается жилой дом у речки Городянка с двумя отдельными входами. Без внутренней отделки, общей площадью 247,0 кв.м, жилая площадь 99,4 кв.м, на 2-х этажах. Дополнительно предусмотрены террасы. Площадь участка 9,08 сот (состоит из двух: 408 кв.м.+500 кв.м.). В доме 8 комнат, 4 санузла, две кухни-гостиные, вспомогательные помещения (планы этажей опубликованы). Фундамент- ленточный с монолитной плитой перекрытия(были проведены геологические изыскания), материал стен- газобетонные блоки. Коммуникации: электричество 40кВт (2 ввода в дом по 20 кВт), холодное водоснабжение осуществляется от городской сети (2 ввода в дом), канализация- две станции биоочистки( Аквалос-5), газовая труба у дома.
Продается жилой дом у речки Городянка с двумя отдельными входами. Без внутренней отделки, общей площадью 247,0 кв.м, жилая площадь 99,4 кв.м, на 2-х этажах. Дополнительно предусмотрены террасы. Площадь участка 9,08 сот (состоит из двух: 408 кв.м.+500 кв.м.). В доме 8 комнат, 4 санузла, две кухни-гостиные, вспомогательные помещения (планы этажей опубликованы). Фундамент- ленточный с монолитной плитой перекрытия(были проведены геологические изыскания), материал стен- газобетонные блоки. Коммуникации: электричество 40кВт (2 ввода в дом по 20 кВт), холодное водоснабжение осуществляется от городской сети (2 ввода в дом), канализация- две станции биоочистки( Аквалос-5), газовая труба у дома. Редкое сочетание города со всей инфраструктурой и красивого уголка природы, с его спокойной, размеренной, комфортной жизнью. Рядом парк культуры и отдыха Городок с красивыми видами на реку (8-10 мин/п). До центра города 12 минут пешком. Установлены окна, входные двери, двери на террасу. Дополнительные фото и видео по запросу. Полная стоимость в договоре. При необходимости можно привлечь к обустройству дома имеющуюся опытную бригаду строителей, дизайнера-проектировщика.