Дом, Ильинская Показать на карте
Глухово
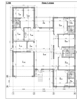
Арт. 69456433 Вашему вниманию представлен современный дом, площадью 328 кв.м. в коттеджном поселке ''Архангельское-2'',расположенный в 9 км. от МКАД по Новорижскому шоссе.Дом построен в 2021 году. Основной особенностью дома является просторная гостинная и большие окна, которые создают ощущение пространства. В отделке использованы качественные материалы, натуральное дерево. На первом этаже разведены теплые полы. Кухня укомплектована бытовой техникой.Из гостиной выход в сауну с комнатой отдыха. В дом заведены и разведены все центральные коммуникации: газоснабжение, электроснабжение, водоснабжение, канализация. Котельная полностью оборудована, установлен газовый котел Weissman, система водоочистки. В доме установлено кондиционирование.На участке правильной прямоугольной формы, площадью 16 соток, сделаны ландшафтный дизайн, дренаж, выстелен газон. Участок полностью огорожен, установлены ворота с электроприводом. Дополнительно возможно взять в аренду сосновый лес с последующим выкупом от 50 до 100 соток. Планировка:прихожая, кухня-гостиная, спальня со своей гардеробной и санузлом, спальня со своей гардеробной и санузлом, спальня, спальня, санузел, сауна с комнатой отдыха и санузлом, котельная, постирочная, гараж на два автомобиля.Коттеджный поселок ''Архангельское-2'' расположен между Ильинским и Новорижским шоссе, в 9 км от МКАД, окружен лесным массивом на берегу Москвы-реки.Площадь КП ''Архангельское-2'' составляет 17 га.Дороги в поселке асфальтированы, улицы освещаются. Подведены все центральные коммуникации: газ, электричество, водопровод, канализация.Въезд на территорию коттеджного поселка осуществляется через КПП, ведется круглосуточное видеонаблюдение.Внутреннее пространство поселка грамотно организовано, что создает все условия для отдыха на свежем воздухе: прогулки по парковой зоне вдоль клумб и изящных фонарей, оборудованные детские площадки.Благодаря расположению по соседству с легендарным музеем-усадьбой ''Архангельское'', жители коттеджного поселка могут наслаждаться красотами классической архитектуры и паркового искусства этих мест. Конной езде можно обучиться в расположенном поблизости конно-спортивном клубе ''Выездка''. На берегах Москва-реки оборудованы пляжные зоны для купания и отдыха на лоне природы. А близость богатой инфраструктуры Рублевки откроет двери лучших ресторанов, бутиков, фитнес-центров и wellness-центров Подмосковья.В непосредственной близости от КП ''Архангельское-2 '' расположены:Магазин ''Мираторг''- 50 мКонный клуб ''Выездка''- 500 мСалон красоты - 800 мДетский сад ''Smile Fish'' - 1 кмДетский сад ''Город Детства'' - 1,5 км.Детский сад ''Cosmo Сад'' - 1,5 кмИльинская больница- 1,5 кмПетровский продуктовый рынок- 1,5 кмГипермаркет ''Твой Дом''- 2,5 кмЮсуповский парк- 4 кмАутлет ''Архангельское'' - 5 кмТЦ РИГАМОЛЛ - 5 кмБарвиха LUXURY VILLAGE- 8 кмЧастная школа ''Президент''- 5 кмЧастная школа ''Наследие''- 8 кмОбщеобразовательная Школа им. Косыгина - 8кмУдобная транспортная доступность: от автобусной остановки ''Ильинские луга'', расположенной рядом с КП ''Архангельское-2'' можно добраться додо ст.м. Тушинская - за 35 минут , до ст. ''Павшино'' (МЦД-2 ) - за 20 минут.
328 м2
1 этаж
Кирпич
- Показать контакты
- Добавить в избранное
328 м2
1 этаж
Кирпич
112 000 000
341 463 /м2
