Дом, пос. Курсаково, 3а Показать на карте
Курсаково
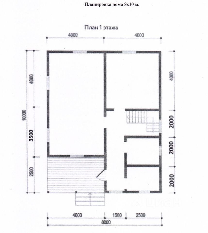
СОБСТВЕННИК! Продаю новый дом 150 кв м на участке 12 соток в деревне Рыжково Истринского района. Есть возможность увеличения участка до 27 соток (приобрести примыкающий участок).Адрес: Истринский район, деревня Рыжково, д. 37Дом расположен на возвышенности с панорамным видом в окружении леса.Комплектация:1) Фундамент - железобетонные сваи2) Дом комбинированный: первый этаж из профилированного бруса, второй этаж каркасный 3) Крыша металлочерепица, цвет серый (графит 7024), установлены снегозадержатели и водостоки4) Энергоэффективные окна высокого качества Melke, снаружи ламинированные в серый цвет (графит 7024)5) Увеличена толщина внутренних перегородок до 140 мм6) Увеличена высота потолков7) Полы первого и второго этажа утеплены и выполнены под чистовую отделку из квик-дека8) Дом выкрашен антисептиком Pinotex9) Второй этаж требует утепления изнутри, планировка свободная.Дом зарегистрирован, никто не пpопиcaн. Участок рaзмeжeван, имеет чeткие грaницы.Элeктpичecтво пoдвeдено, лицевой счет присвоен.Соседи живут постоянно.Возможна ипотека, военная ипотека.По всем вопросам звоните, пишите, с радостью отвечу. Я собственник.
150 м2
2 этажа
Дерево
- Показать контакты
- Добавить в избранное
150 м2
2 этажа
Дерево
5 990 000
39 933 /м2
