1-к, Большое Путилково ЖК, 28 Показать на карте
Путилково
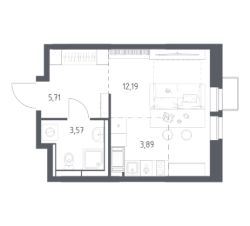
Строим кварталы для жизни с заботой о будущем. Предлагается студия комфорт-класса площадью 21,82 кв.м в корпусе 28 на 22-м этаже, в жилом комплексе ''Большое Путилково''.Если хотите заехать, сразу расставить мебель и наслаждаться отдыхом, выбирайте квартиру с готовой отделкой. В комнатах будут натяжные потолки, обои под покраску, ламинат в светлых тонах, а в санузлах — керамическая плитка и керамогранит.Для тех, кто хочет реализовать собственный дизайн-проект, есть варианты без отделки.Приобрести квартиру возможно по специальным акциям от застройщика, с текущими условиями акций можно ознакомиться в блоке ''Акций''.Цена динамическая и может отличаться, уточняйте актуальность у застройщика. Замечтаться однажды и уехать жить в ''Большое Путилково''. Жилой комплекс окружают Новогорский лесопарк и Алешкинский лес. До школы, детских садов и всей собственной инфраструктуры — пара шагов. Безопасные дворы-парки с детскими и спортивными площадками, кофейни и магазины — все важное рядом.10 минут, и вы уже на одной из четырех станций метро — ''Пятницкое шоссе'', ''Сходненская'', ''Митино'', ''Планерная''. 2 минуты на машине — и вы на МКАДе.
21 м2
22 / 25 этаж
Монолит
- Показать контакты
- Добавить в избранное
21 м2
22 / 25 этаж
Монолит
6 497 126
297 760 /м2
Новостройка,
II-2027
II-2027
